top of page

Metal & Pole Barn Homes: Text
Metal and Post & Frame Homes
We specialize in designing Metal Building Homes and Post & Frame Homes and strive to provide you with quality architectural plans at an affordable rate. We are passionate about hearing your vision for your home and hope to provide you with an enjoyable experience.
Here is what will be included with your bid set plans:
-
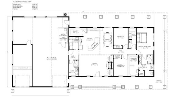
Floor Plans
-
Elevations
-
3D Renderings
-
Preliminary Set of Construction Plans

Metal & Pole Barn Homes: Pro Gallery
For an additional charge, we can also provide a site plan or more detailed interior design work.
With a complete set of plans, you will be ready to start building your dream home!
Our design team would love to connect with you to answer any questions that you may have. You can either give us a call, fill out the form below for a quote and more information, or schedule an appointment to meet with us about your project. We look forward to working with you!
bottom of page








